Current Projects 

Current Projects

Please see the Development Status Report (DSR) (PDF) for a list of current Planning Projects.

For an explanation of the DSR legend and common abbreviations, click here (PDF).

For more information about a specific project, please contact Community Development at 562-989-7340.

6th Cycle Housing Element Update:  Housing Inventory Sites

The City of Signal Hill is excited to share the State Certified Housing Element Update. Thank you to everyone who read and asked questions and commented on drafts!

Please read the full Certified Housing Element (PDF) document. 

The following four housing inventory sites were approved by City Council to accommodate the State mandated Regional Housing Needs Assessment (RHNA) allocation of 517 units for the 6th Cycle Housing Element update. The following conceptual site plans and renderings were included in the 6th Cycle Certified Housing Element.

Housing Inventory Site Map

Inventory Sites Map

Site #1: Orange Bluff Conceptual Site Plan

Orange Bluff Conceptual Site Plan

Site #2: Walnut Bluff Conceptual Site Plan

Walnut Bluff Conceptual Site Plan

Site #3: Town Center Northwest Conceptual Site Plan

Town Ctr NW Conceptual Site Plan

Town Center NW Conceptual Main Street

Town Center NW Main Square Rendering

Town Center NW Conceptual Retail Plaza

Town Center NW Retail Plaza Rendering

Site #4:  Heritage Square

In 2018, this site was proposed as the Heritage Square mixed-use residential and commercial development. The City’s General Plan designated this site as a future central business district, mixed-use development. In 2018, a conceptual plan for a mixed-use project, proposed as Heritage Square was reviewed at a community meeting. Public support was voiced for the mixed-use concept; however, the following concerns were registered:

  • The height of the residential structure which was 3- and 4-story;
  • The density/number of res. units was too great (203 units); and
  • An ownership residential product was preferred over the proposed rental type 

The current conceptual plans have been revised as follows:

  • Reduced height with a residential mix of three-story townhomes within the site and two-story single-family residences along Rose Avenue;
  • Reduced density for a total of 60 residential units consisting of 54 attached three-story townhomes and 6 two-story single-family residences; 
  • Ownership townhomes versus rental apartments.

2018 Conceptual Site Plan

Heritage Square 2018 site plan

2018 Entry from Cherry Ave. and E. Burnett St. Conceptual Rendering

Heritage Square Mockup 1

2021 Conceptual Site Plan

Heritage Square 2021 Conceptual Site Plan

2021 Entry from Cherry Ave. and E. Burnett St. Conceptual Rendering

Heritage Square 2021 rendering

2018 Main Square Conceptual Rendering

Heritage Square 2018 Main Street

2021 Main Square Conceptual Rendering

Heritage Square 2021 Main Street

Signal Hill Petroleum Drill Sites Conditional Use Permit – Administrative Term Extension

 

The City received a request from Signal Hill Petroleum (SHP) to extend the administrative term  of its existing Conditional Use Permit (CUP 97-03) for operation of its seven drill sites for 20 years which includes oil and gas production, as well as the storage, processing, and shipping of the produced materials. Under the existing CUP 97-03, SHP is allowed to drill new wells and conduct rework and maintenance operations on existing wells. CUP 97-03 does not place a limit on the number of new wells or rework operations that may be conducted at the drill sites. The Project would not alter or expand the scope of the allowed oil and gas operations under CUP 97-03All operations (existing and proposed) would continue to occur within the existing permitted footprint of the CUP drill sites.

Dependent on approval by the California Geologic Energy Management Division (CalGEM), SHP proposes to install new equipment at the existing natural gas processing facility at CUP Drill Site #2 and drill up to 5 new wells per year at the seven drill sites over the next 20 years (up to a maximum total of 46 new wells). All other operational activities, such as site maintenance, inspections, redrilling, well operation, and fluid processing would remain the same. SHP would continue to operate the drill sites in accordance with the existing City Municipal Oil and Gas Code, conditions of approval and mitigation measures, and in continued compliance with existing county, state, and federal requirements, including those published by CalGEM. SHP would also continue ongoing ‘by right’ oil and gas operations consistent with the City’s Oil and Gas Code (Signal Hill Municipal Code – Title 16) and CalGEM requirements, as applicable.

SHP is seeking to modify CUP 97-03 with the following objectives:

1.    Extend the administrative term of the CUP by an additional 20-years, to 2042.

2.    Continue existing consolidated drill site operations, including placing a limit on the total number of new wells allowed to be drilled within the existing CUP footprint and install upgrades to a natural gas processing system. 

If you have further questions regarding this project please contact Community Development Director Colleen T. Doan at 562-989-7344, or by email at cdoan@cityofsignalhill.org.

August 10, 2021 City Council Staff Report

August 10, 2021 City Council Staff Report Attachment C

August 10, 2021 City Council Resolution

2021 Approved Conditions of Approval for CUP 97-03

 

Notice of Preparation - Posted January 13, 2023

Initial Study - Posted January 12, 2023

 

Public Comment Meeting Presentation, June 24, 2024 - Posted June 26, 2024

Public Comment Meeting Presentation, June 4, 2024 - Posted June 10, 2024

Notice of Availability - Posted May 6, 2024

Draft Environmental Impact Report - Posted May 6, 2024

DEIR Appendix A: NOP Initial Study and Scoping Comments - Posted May 6, 2024

DEIR Appendix B: MMRP - Posted May 6, 2024

DEIR Appendix C: Visual Impact Analysis - Posted May 6, 2024

DEIR Appendix D: Air Quality Technical Report - Posted May 6, 2024

DEIR Appendix E: Biological Resources Technical Report - Posted May 6, 2024

DEIR Appendix F: Energy Impact Analysis - Posted May 6, 2024

DEIR Appendix G: Hazards Technical Report - Posted May 6, 2024

DEIR Appendix H: Hydrology Technical Report - Posted May 6, 2024

DEIR Appendix I: Noise Technical Report - Posted May 6, 2024

DEIR Appendix J: Traffic Transportation Technical Report - Posted May 6, 2024

DEIR Appendix K: Cultural Resources Report - Posted May 6, 2024


Gateway Center North

  • 950 E. 33rd Street and Southwest corner of California Ave. and E. 33rd Street
  • Remodel of the existing Target Store
  • Three added commercial pads totaling 23,500 square feet
  • New self-storage facility
  • Developer: Target Corporate and Signal Hill Petroleum

Status: On April 20, 2021, the Planning Commission approved SPDR 21-03 and SPDR 21-04 (see the Agenda here).  On May 11, 2021, the City Council approved ZOA 21-01, CUP 21-01, CUP 21-02, the MND, and the Development Agreement (see the Agenda here).

Public Hearing Plans

Notice of Intent to Adopt a Mitigated Negative Declaration (PDF)

Initial Study and Mitigated Negative Declaration (PDF)

Appendix A (PDF)

Appendix B (PDF)

Appendix C (PDF)

Appendix D (PDF)

Site Plan
Retail rendering
Self Storage rendering
Target rendering

1933-1939 Temple Avenue

  • 8 detached single-family homes
  • Applicant: Signal Ventures LLC

Status:  Site Plan and Design Review 24-01 and Tentative Tract Map 74232 were approved by the Planning Commission at the October 15, 2024 public hearing.  Planning Commission recommended City Council approval of IS/MND SCH 2024100062, Zoning Ordinance Amendment 24-01, and Tentative Tract Map 74232. On December 10, 2025, the City Council adopted the Zoning Ordinance Amendment for the Courtyard Specific Plan and the IS/MND. 

The applicant has submitted construction documents and those are in review. A demolition permit has been issued and the demolition was started.

Tentative Parcel Map (PDF)

Notice of Intent (PDF)

Final IS/Mitigated Negative Declaration (PDF)

Appendix A: Final MMRP (PDF)

Color Renderings_Page_1
Preliminary Landscape Plan Page 1

2599 E. Pacific Coast Highway

  • 7 attached and detached single-family homes
  • Applicant: Thomas Jacobs, Agent

Status:  The Planning Commission has recommended that the project proceed to a public hearing following completion of reports facilitating an environmental (CEQA) determination.

PCH Molino Elevations_Page_1
PCH Molino Elevations_Page_4
2599 E PCH Site Plan for Website

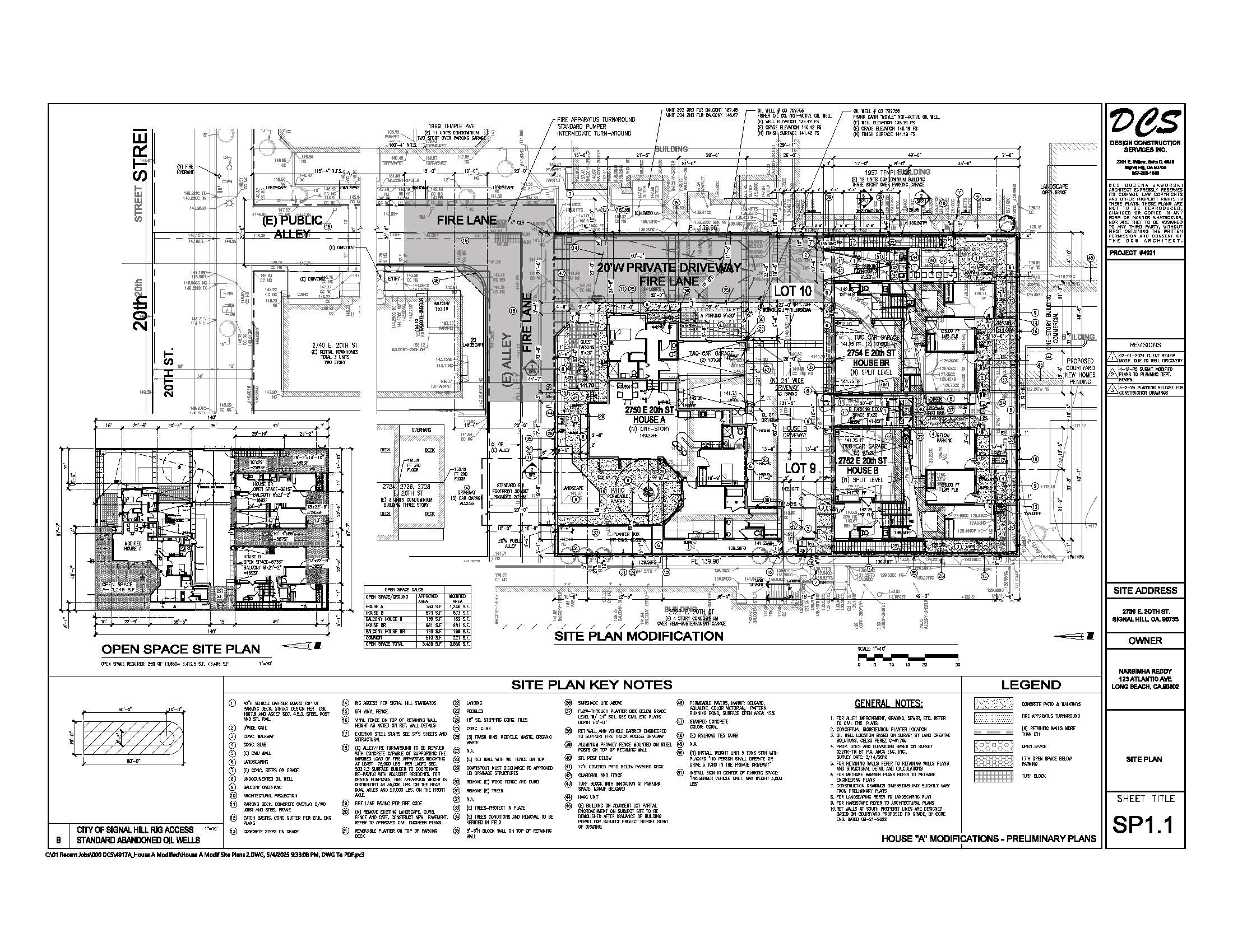
2750 E. 20th Street

  • Proposal to demolish an existing one-story single-family dwelling and construct three detached single-family homes with a two-car garage per unit and three surface parking spaces
  • Applicant: Narshima Reddy

Status:  Planning Commission approved Site Plan and Design Review 19-02 on October 18, 2022.

  1. MND (PDF)
  2. Phase I ESA (Volume 1) (PDF)
  3. Phase I ESA (Volume 2) (PDF)
  4. Phase II ESA (PDF)
  5. OEHHA Memo (PDF)
2750 E. 20th St Site Plan